

Bali Guest House
Bali, Indonesia
Bali is one of the most popular tourist attraction in the world. Many facility estabilished to accommodate tourists, such as lodging, hostelry, restaurant. Guest House is one of the profitable business in Bali, despite of hotel. A distinctive feature that distinguishes between guest houses and star hotels is the cheaper price. In addition, a guest house that is managed by the owner himself is different from a hotel managed by full-time staff and unique building design. Another difference between hotels and guest houses is that hotels require staff attendance 24 hours a day and 7 days a week at the hotel, whereas guest houses have a more limited staff attendance schedule. In upper class guest houses, the owner usually lives separately from his guest house, or is separate but still in an adjacent area.
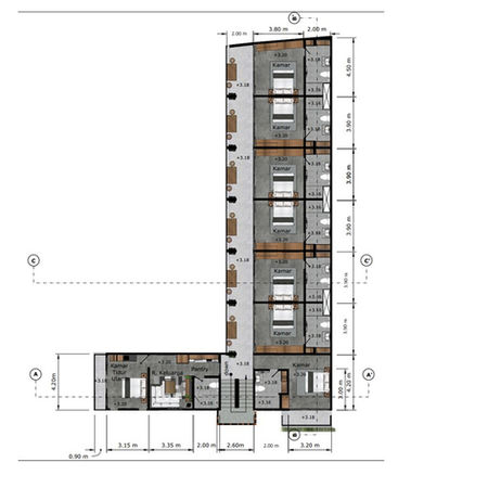
The Building that we designed want to enhanced local material and patterns by exposing raw materials, where natural texture and pattern become high value, moreover we put some patterns on the facade that has been transformed from Bali Pattern. There are several facilities in it, such as Guest Room with unique design washed by natural lighting, Main Lobby, Swimming Pool, and some Co-Working Space.
Project Information
.jpg)
Project Gallery

















